Главная
Портфолио
Услуги
Контакты
Портфолио
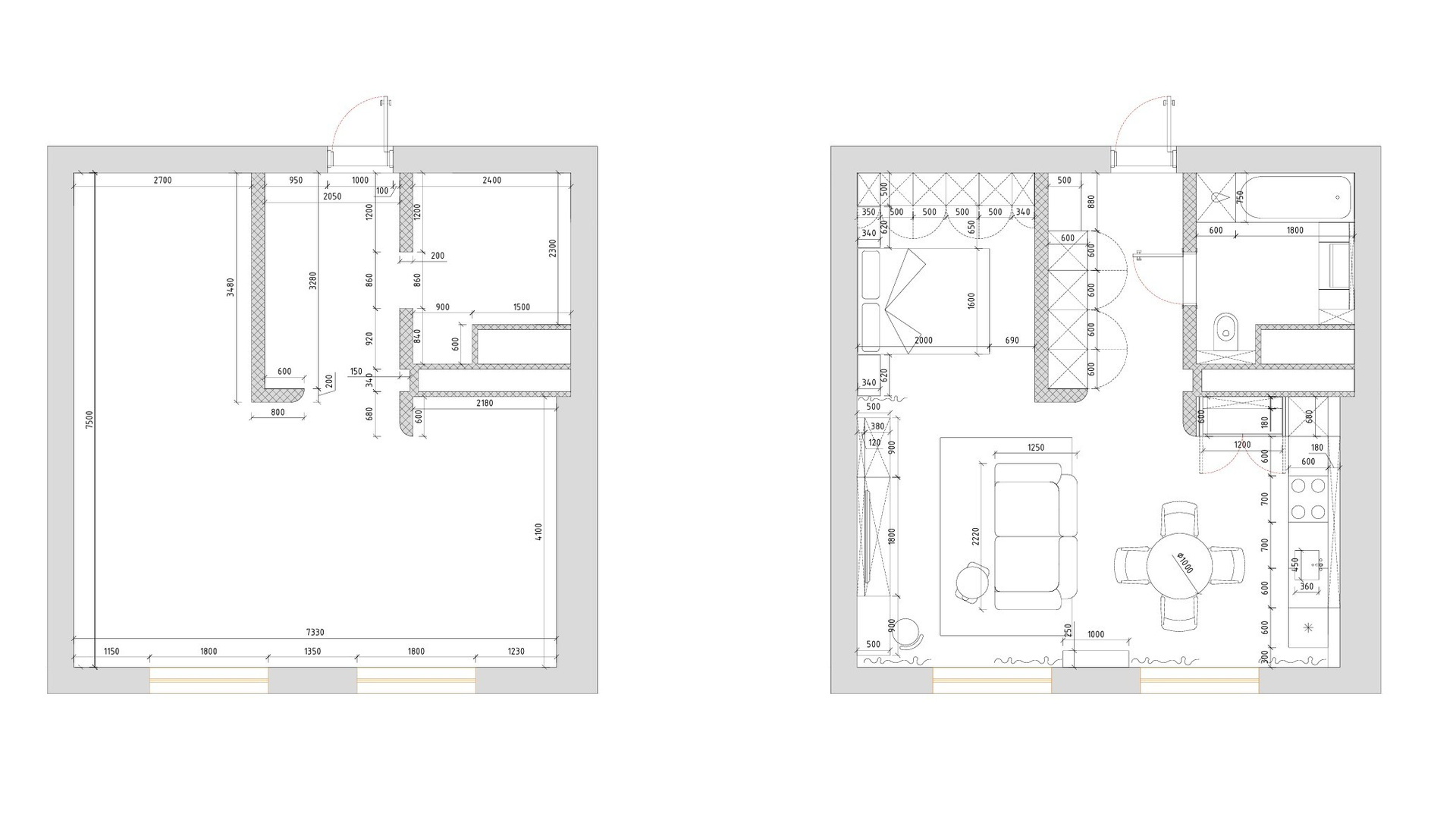
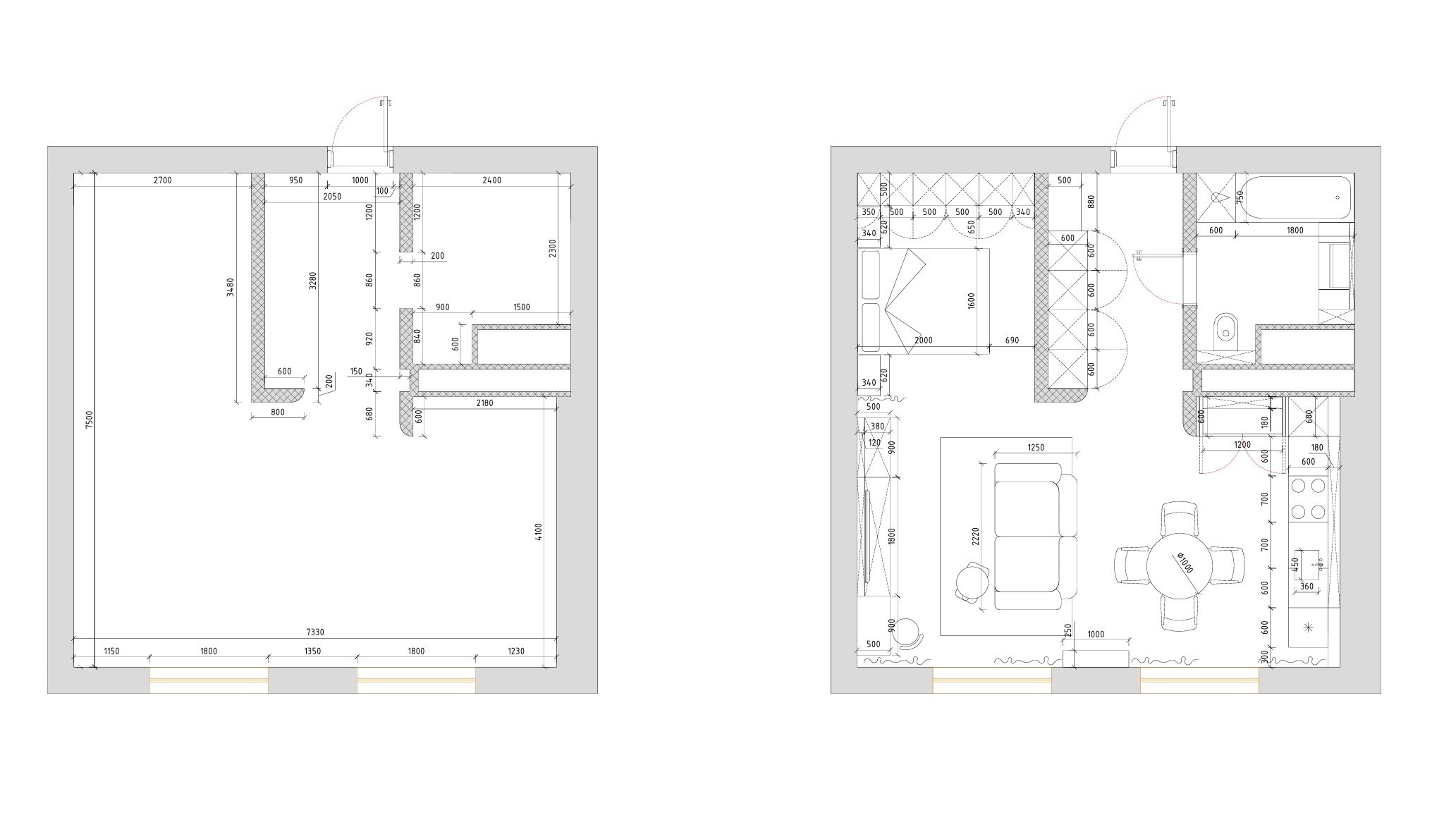
АС | Квартира 47 м².
Ванная комната | АС
АС | Дом жк Румянский
AC |ЖК Дом у озера| (в разработке)
AC | Студия 32 м|в (разработке.)
АС | ЖК Европейский (в разработке)
АС | Детская комната
АС | Гостиная комната.
АС | Спальные комнаты в стиле джапанди
АС | Дом в стиле джапанди
АС | Кухня с отсровом
АС|Апартаменты ЖК Европейский.
| АС| Апартаменты для сдачи